ЛОТ 56555 НР

Коттедж в поселке Новорижский

+21 фото

Продажа загородного дома площадью 300 кв.м. Новорижское шоссе, 23 км от МКАД. Коттеджный поселок Новорижский. Дом построен в 3 этажа из кирпича. В доме все коммуникации центральные, оптоволоконный интернет, видеонаблюдение. Гараж 1 м/м, навес 1 м/м. Участок 10 соток с ландшафтным дизайном и газоном. На участке высажены плодовые деревья и организованна зона барбекю.

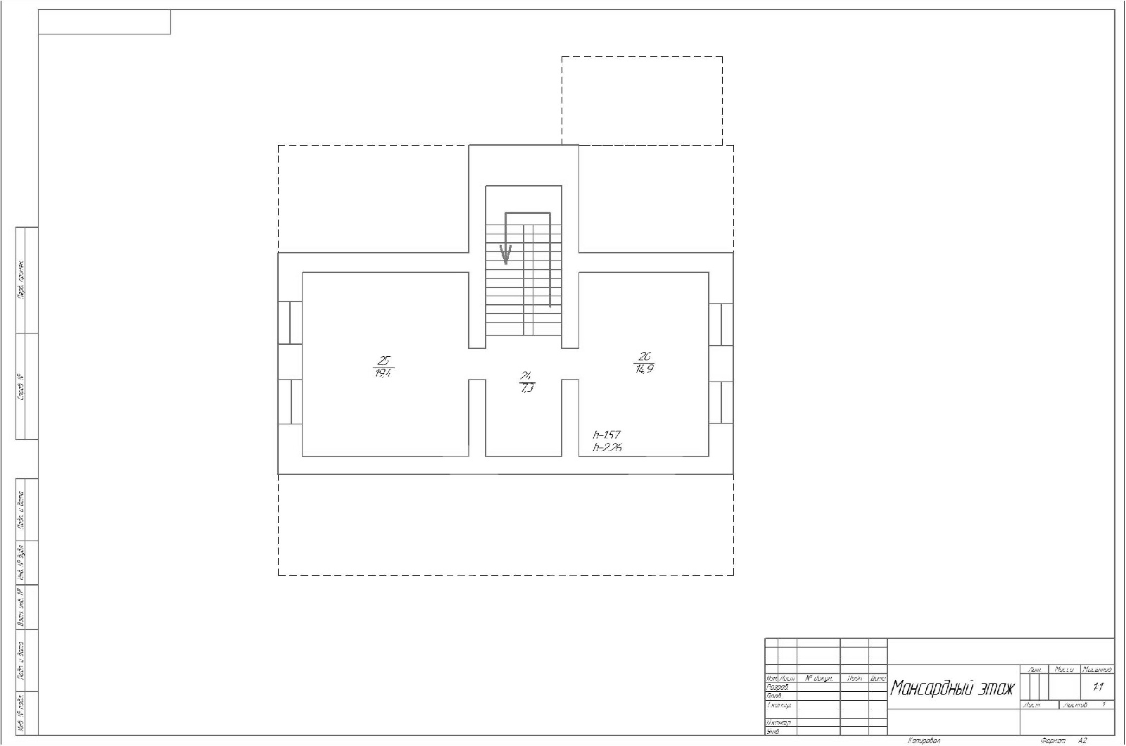
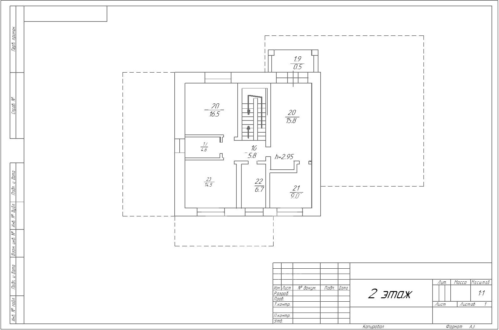
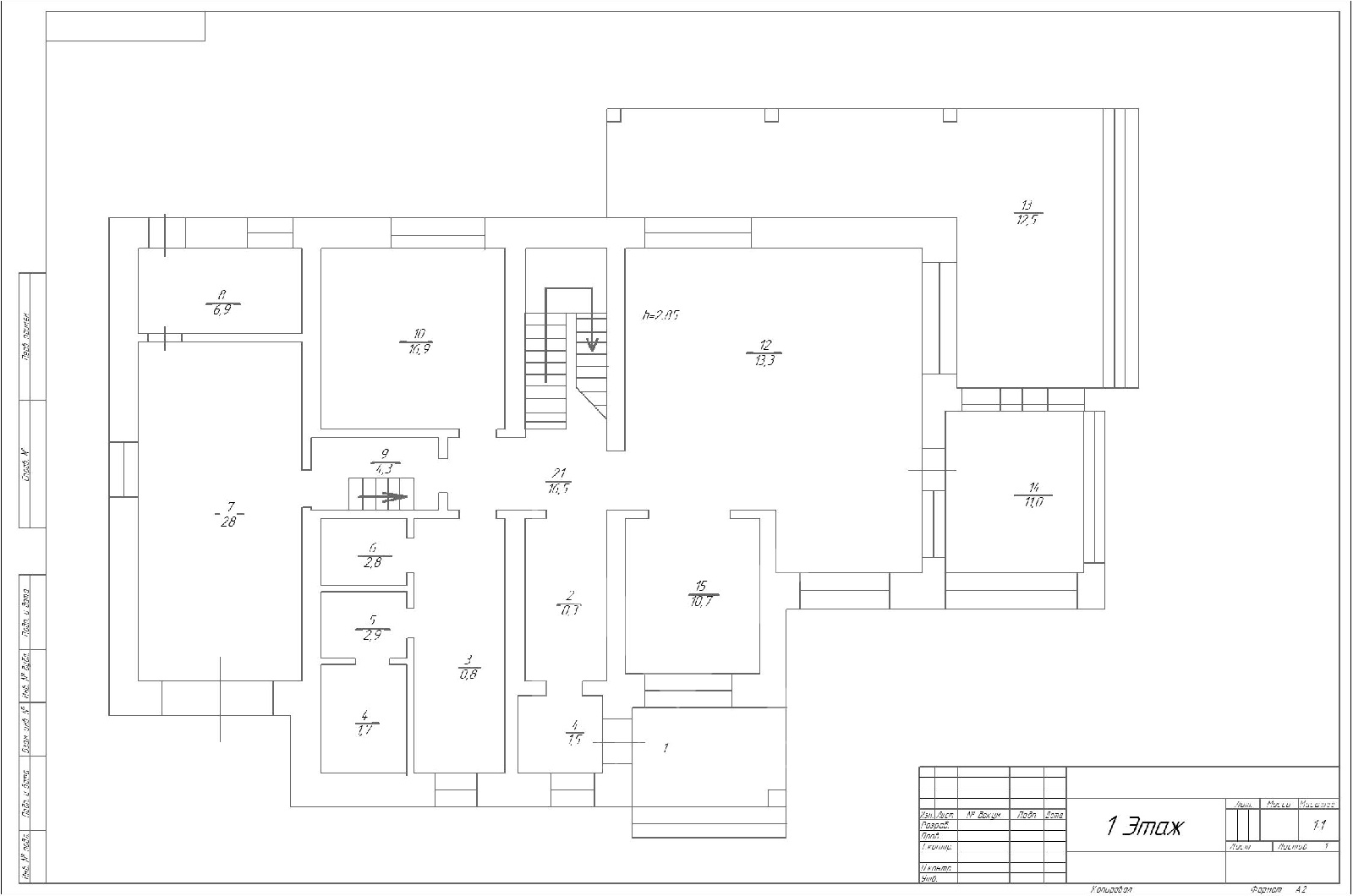
Планировка:
1 этаж - кухня, гостиная-столовая с выходом на крытую и открытую террасу, спорт зал, сауна, с/у
2 этаж - мастер-спальня с гардеробной и с/у, 2 спальни, с/у, гардеробная, постирочная,
Мансарда - кабинет, игровая.

$
£
788.488 $
2.628 $ / м2
59.999.000
199.997 / м2
589.613 £
1.965 £ / м2
676.405 €
2.255 € / м2
Лот не продается
Поселок
Новорижский
Тип
Коттедж
Площадь общая:
300 м2
Участок
10 соток
Количество спален
3
Состояние
с отделкой
Сауна
есть
План помещенияПлан помещенияПлан помещения посмотреть планировку
Этот лот можно арендовать

Похожие предложения

ЛОТ 80575 НР
ЛОТ 80575 НР

55.000.000

250 м²
12.5 соток
0 спален
без отделки
ЛОТ 82129 НР
ЛОТ 82129 НР

62.000.000

510 м²
27 соток
5 спален
с отделкой
ЛОТ 56133 НР
ЛОТ 56133 НР

65.000.000

570 м²
12 соток
4 спальни
без отделки
ЛОТ 80431 НР
ЛОТ 80431 НР

65.000.000

217 м²
13 соток
5 спален
с отделкой

Перезвонить вам?

Наш адрес: 143581, Московская область, Истринский район

Часы работы: 365дн 24ч