ЛОТ 52450 МТ

Коттедж в поселке Миллениум парк

+18 фото

БАССЕЙН. Продажа загородного дома общей площадью 490 кв.м. Новорижское шоссе, 19 км от МКАД. Коттеджный поселок Миллениум Парк. Этот 2 этажный коттедж, построенный по индивидуальному проекту, полностью готов к проживанию и продается с мебелью и бытовой техникой. Дом расположен на участке площадью 20 соток с ландшафтным дизайном и имеет выход к каналу. На участке также расположен гараж площадью 125 кв.м. На первом этаже гаража есть место для 2 автомобилей, а также бойлерная. На втором этаже гаража расположен блок для персонала, включающий кухню, санузел, спальню и гардеробную комнату. 

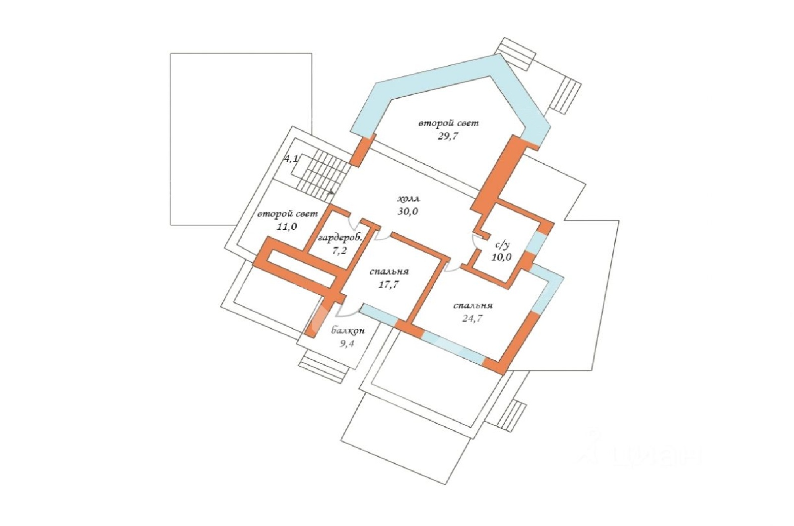
Планировка:

1 этаж - холл, гардероб, кабинет, с/у, спальня с гардеробной, спальня, гостиная, столовая, с/у, прачечная, бойлерная, кухня-столовая, SPA комплекс (бассейн 7х2,5, сауна, душ, зона отдыха)

2 этаж - холл, хозяйская спальня с с/у, хамамом, гардеробной и тренажерным залом, кабинет, спальня с с/у и гардеробной.

$
£
7.370.589 $
11.985 $ / м2
550.000.000
894.309 / м2
5.418.346 £
8.810 £ / м2
6.257.844 €
10.175 € / м2
Поселок
Миллениум парк
Тип
Коттедж
Площадь общая:
615 м2
Участок
20 соток
Количество спален
4
Комнаты для персонала
1
Состояние
с отделкой
Сауна
есть
Бассейн
есть
План помещенияПлан помещения посмотреть планировку
Этот лот можно арендовать

Похожие предложения

ЛОТ 80498 МТ
ЛОТ 80498 МТ

575.000.000

700 м²
32 сотки
5 спален
с отделкой
ЛОТ 56322 МТ
ЛОТ 56322 МТ

575.000.000

700 м²
32 сотки
5 спален
с отделкой
ЛОТ 82162 МТ
ЛОТ 82162 МТ

548.000.000

1400 м²
19 соток
6 спален
с отделкой
ЛОТ 58391 МТ
ЛОТ 58391 МТ

575.000.000

920 м²
28 соток
5 спален
с отделкой

Перезвонить вам?

Наш адрес: 143581, Московская область, Истринский район

Часы работы: 365дн 24ч