ЛОТ 82487 НР

Коттедж в поселке Новорижский

+3 фото

Продажа современного загородного дома площадью 350 кв.м по Новорижскому шоссе, 23 км от МКАД. Коттеджный поселок Новорижский. Коттеджный поселок Новорижский. Этот двухэтажный шедевр, возведённый из кирпича, в стиле хай-тек, обладает технологичным фасадом из керамогранита. Панорамное алюминиевое остекление заливает пространство светом, наполняя каждый уголок радостью. Интерьер, оформленный в современном дизайнерском стиле с акцентом на светлых тонах, восхищает гармонией и изяществом. Удобная и функциональная планировка с высокими потолками создает ощущение простора, а современная система приточно-вытяжной вентиляции с кондиционированием гарантирует комфорт в любое время года. Участок площадью 6 соток находится в самой тихой части поселка, между двух озер.

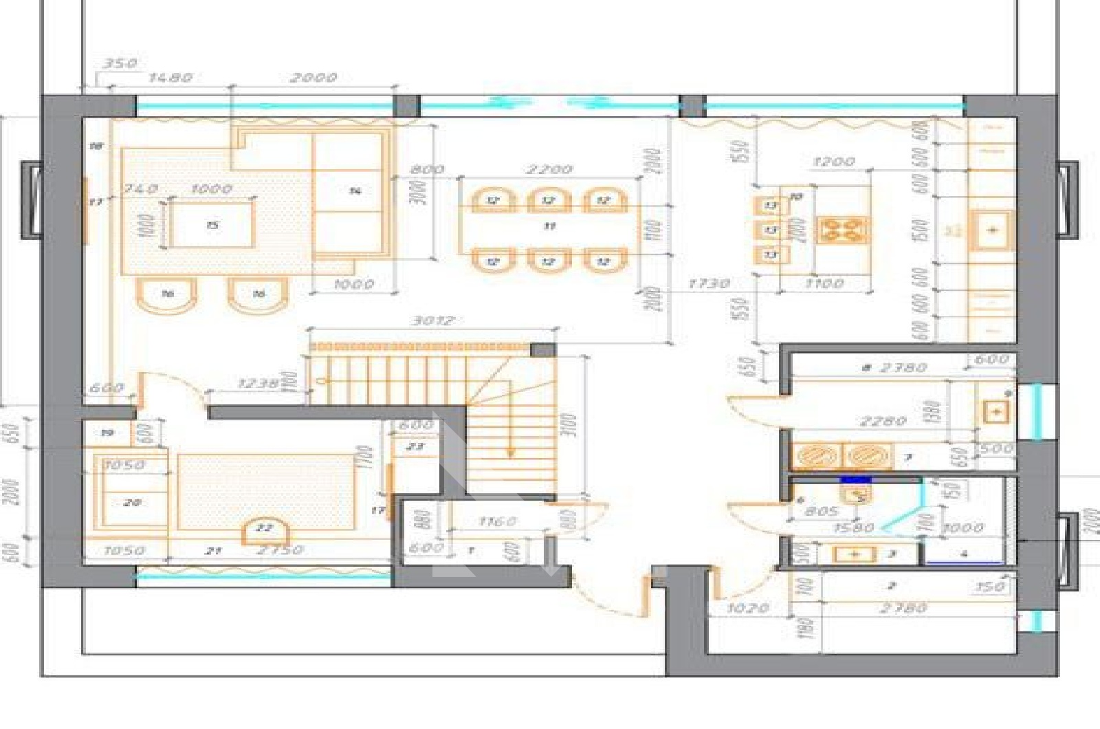
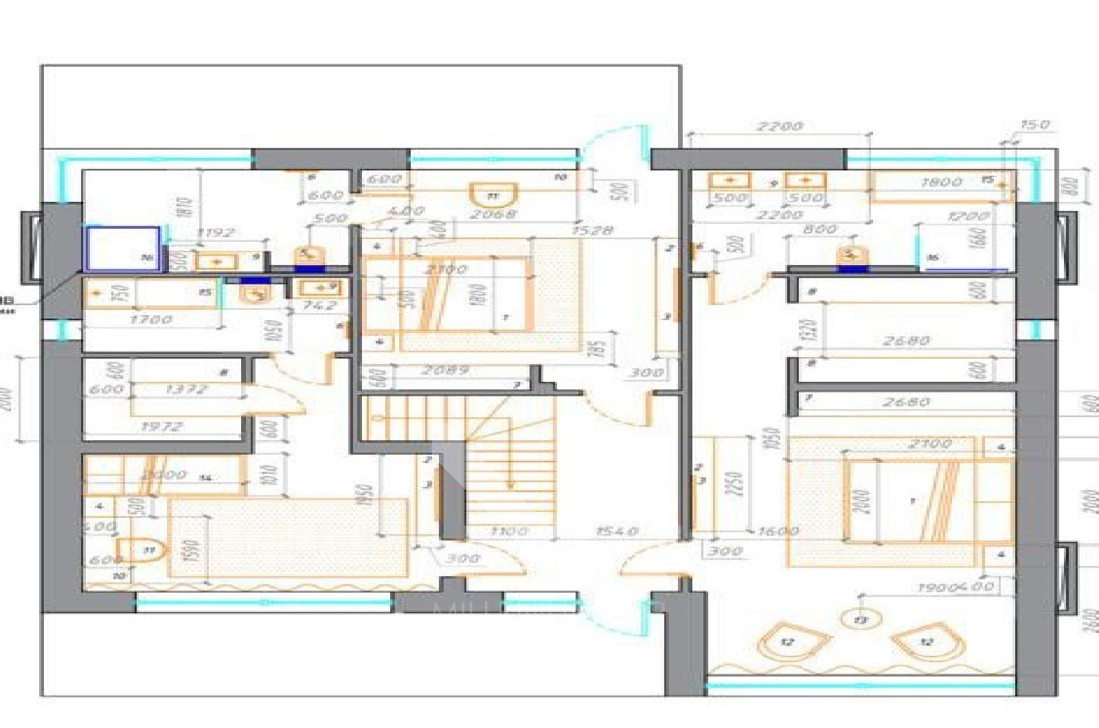
Планировка:

1 этаж - холл, гардеробная, кухня-столовая-гостиная с выходом на участок, спальня, с/у, сауна, душевая, раздевалка, постирочная, котельная, гараж на 2 м/м,

2 этаж - 3 спальни с гардеробными и с/у.

$
£
1.987.486 $
5.679 $ / м2
160.000.000
457.143 / м2
1.501.008 £
4.289 £ / м2
1.713.257 €
4.895 € / м2
Поселок
Новорижский
Тип
Коттедж
Площадь общая:
350 м2
Участок
6 соток
Количество спален
4
Состояние
с отделкой
Сауна
есть
План помещенияПлан помещения посмотреть планировку

Похожие предложения

ЛОТ 54385 МТ
ЛОТ 54385 МТ

164.000.000

350 м²
14 соток
4 спальни
без отделки
ЛОТ 80347 В
ЛОТ 80347 В

165.000.000

400 м²
9.6 соток
4 спальни
с отделкой
ЛОТ 82476 НР
ЛОТ 82476 НР

165.000.000

454 м²
12 соток
4 спальни
с отделкой
Лот 54102 В
Лот 54102 В

155.000.000

615 м²
21 сотка
4 спальни
без отделки

Перезвонить вам?

Наш адрес: 143581, Московская область, Истринский район

Часы работы: 365дн 24ч