ЛОТ 82379 МТ

Коттедж в поселке Миллениум парк

+4 фото

Продажа загородного дома общей площадью 454 кв.м. Коттеджный поселок Миллениум Парк. Новорижское шоссе, 19 км от МКАД. Дом построен в 2 этажа, без отделки. Просторный и надёжный дом премиум-класса с продуманной инженерией и стильной архитектурой. Фундамент на сваях, стены из керамоблока, ж/б перекрытия. Установлены окна и ворота Alutech, вентилируемый фасад с крупноформатной плиткой, термоясенем и декоративной штукатуркой.
Дом полностью подготовлен под чистовую отделку: выполнена штукатурка, стяжка полов, разведена инженерия. Установлен котёл Viessmann, вентиляция с рекуперацией, электричество 22,5 кВт, дренаж и внутренняя ливневка. Участок площадью 8 соток благоустроен: ж/б площадка с тёплым полом, откатные ворота на отдельном фундаменте, тротуарная плитка.

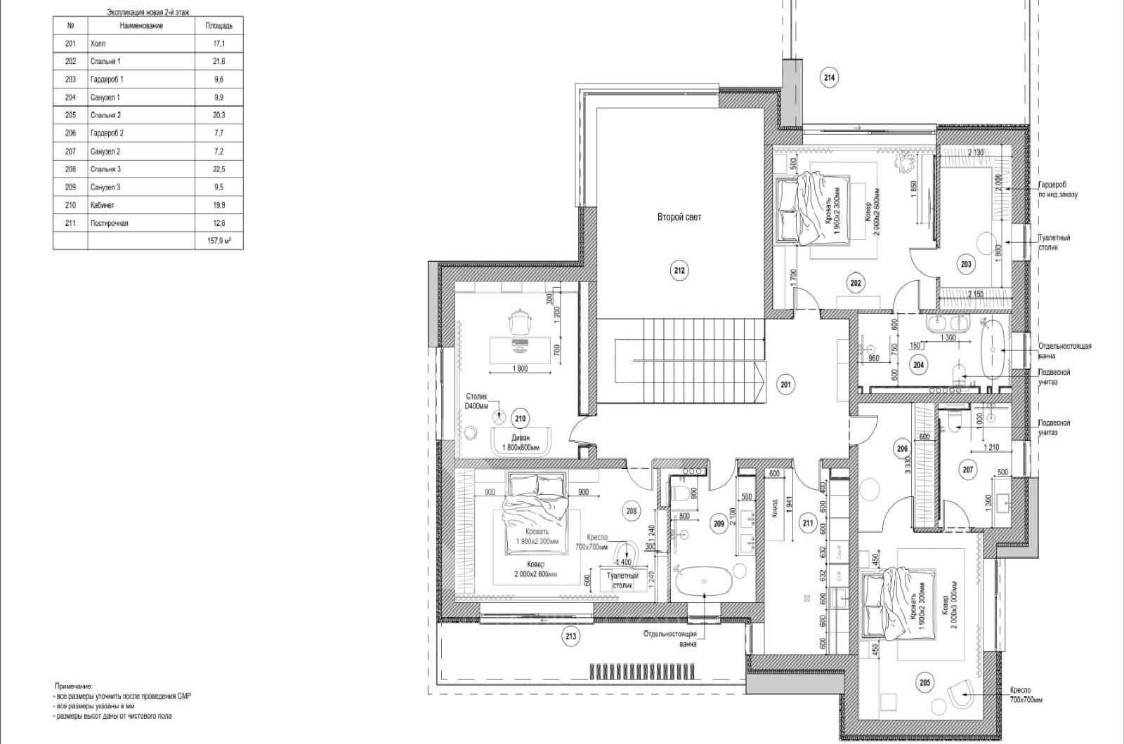
Планировка:

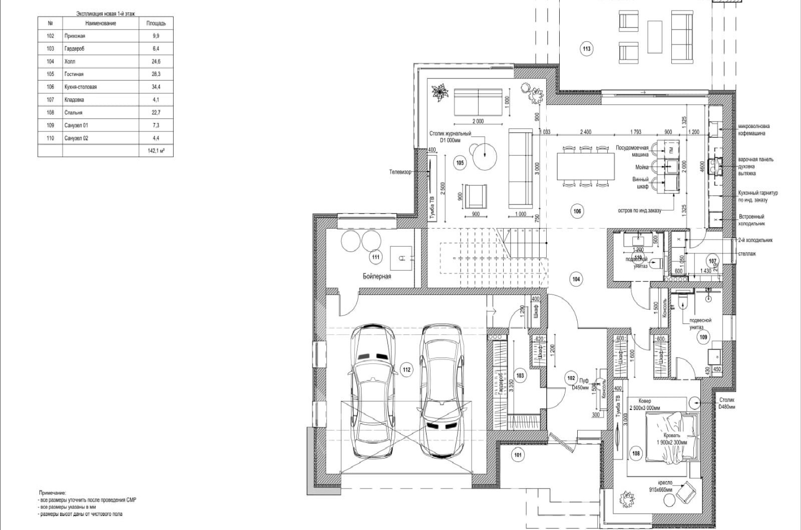
1 этаж - холл, гардеробная, гостиная, кухня-столовая, спальня, 2 с/у, кладовая, гараж, 

2 этаж - 2 спальни с гардеробными и с/у, спальня c с/у, кабинет, постирочная.

$
£
2.181.354 $
4.805 $ / м2
175.000.000
385.463 / м2
1.634.094 £
3.599 £ / м2
1.902.490 €
4.191 € / м2
Поселок
Миллениум парк
Тип
Коттедж
Площадь общая:
454 м2
Участок
8 соток
Количество спален
4
Состояние
без отделки
План помещенияПлан помещения посмотреть планировку

Похожие предложения

ЛОТ 82634 МТ
ЛОТ 82634 МТ

180.000.000

400 м²
16 соток
4 спальни
без отделки
ЛОТ 82307 НР
ЛОТ 82307 НР

180.000.000

575 м²
12 соток
4 спальни
с отделкой
ЛОТ 82414 ВП
ЛОТ 82414 ВП

170.000.000

500 м²
20 соток
4 спальни
с отделкой
ЛОТ 56147 МТ
ЛОТ 56147 МТ

175.000.000

913 м²
18 соток
5 спален
без отделки

Перезвонить вам?

Наш адрес: 143581, Московская область, Истринский район

Часы работы: 365дн 24ч