ЛОТ 56921 МТ

Коттедж в поселке Миллениум парк

+21 фото

Продажа загородного дома общей площадью 1064 кв.м. Новорижское шоссе, 19 км от МКАД. Коттеджный поселок Миллениум Парк. Коттедж построен в 2 этажа. Под отделку в стиле Хай-тек. Готов к отделке, что позволит вам воплотить свои самые смелые идеи. Гостиная со вторым светом и террасой создает пространство для отдыха и общения с семьей и друзьями. В дополнение к этому, вы сможете наслаждаться СПА-зоной с бассейном, хаммамом и сауной. Отдельно стоящий гараж на 2 автомобиля с квартирой для персонала на втором этаже был построен в едином стиле с главным домом. Также имеется теплая беседка, где вы сможете наслаждаться приятными вечерами на свежем воздухе. Участок площадью 30 соток, выполнен ландшафтный дизайн, растут деревья, выполнено мощение и озеленение территории, а также есть прямой выход к прогулочной зоне с каналом.

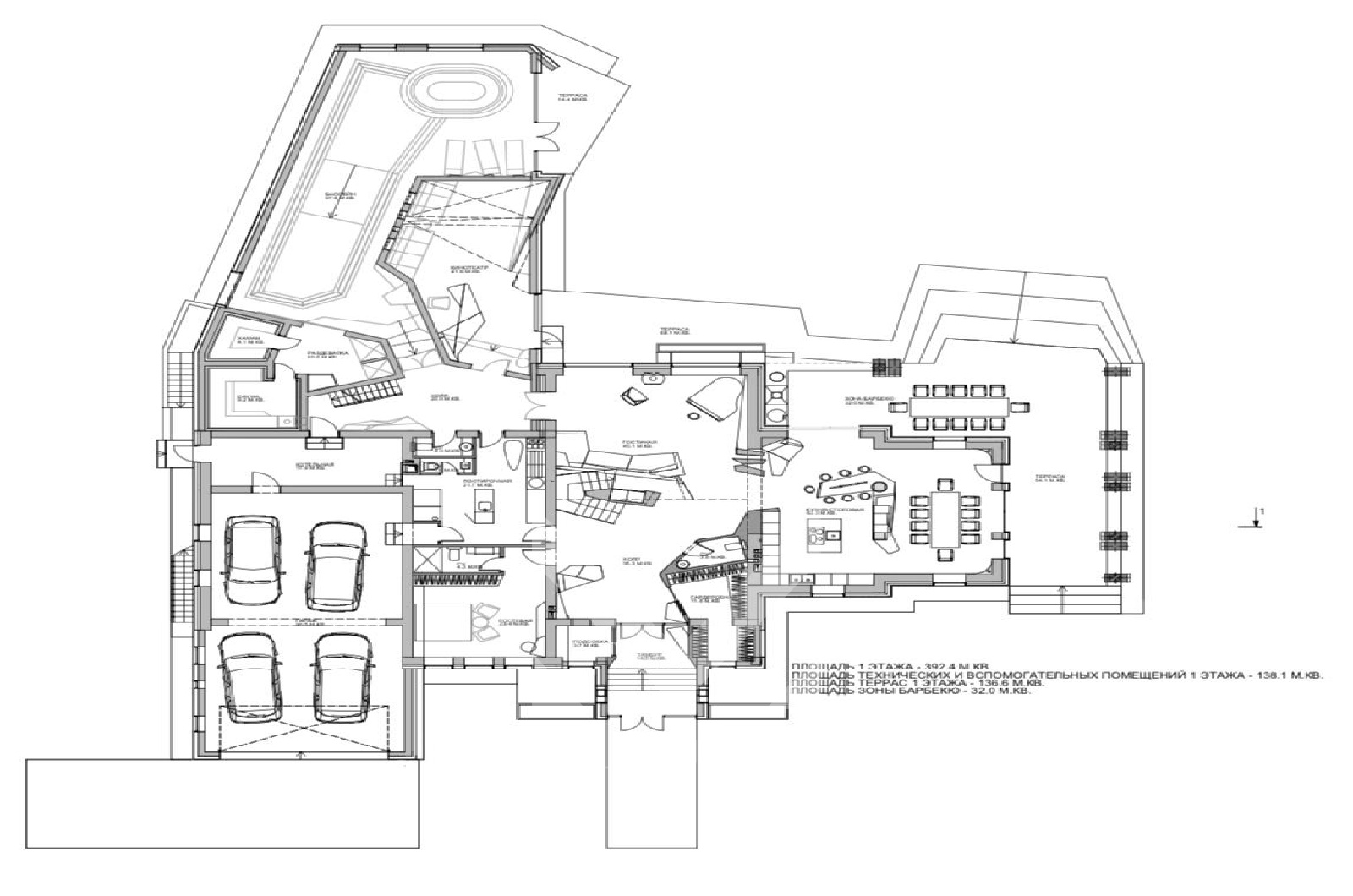
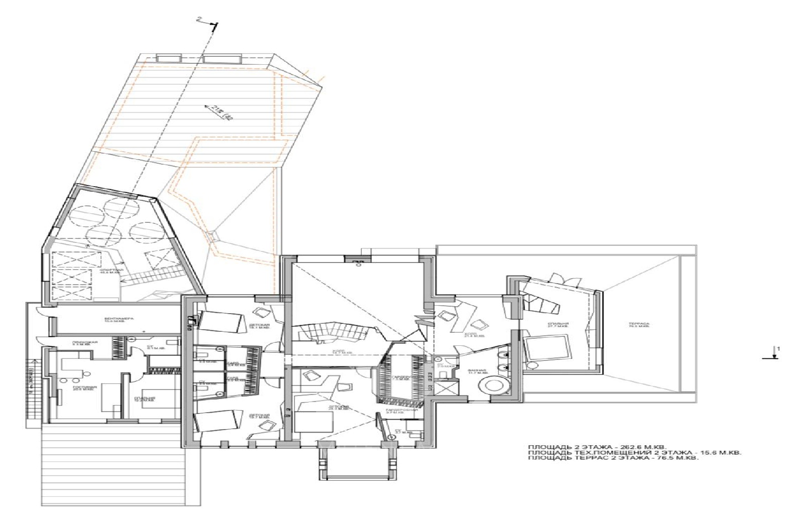
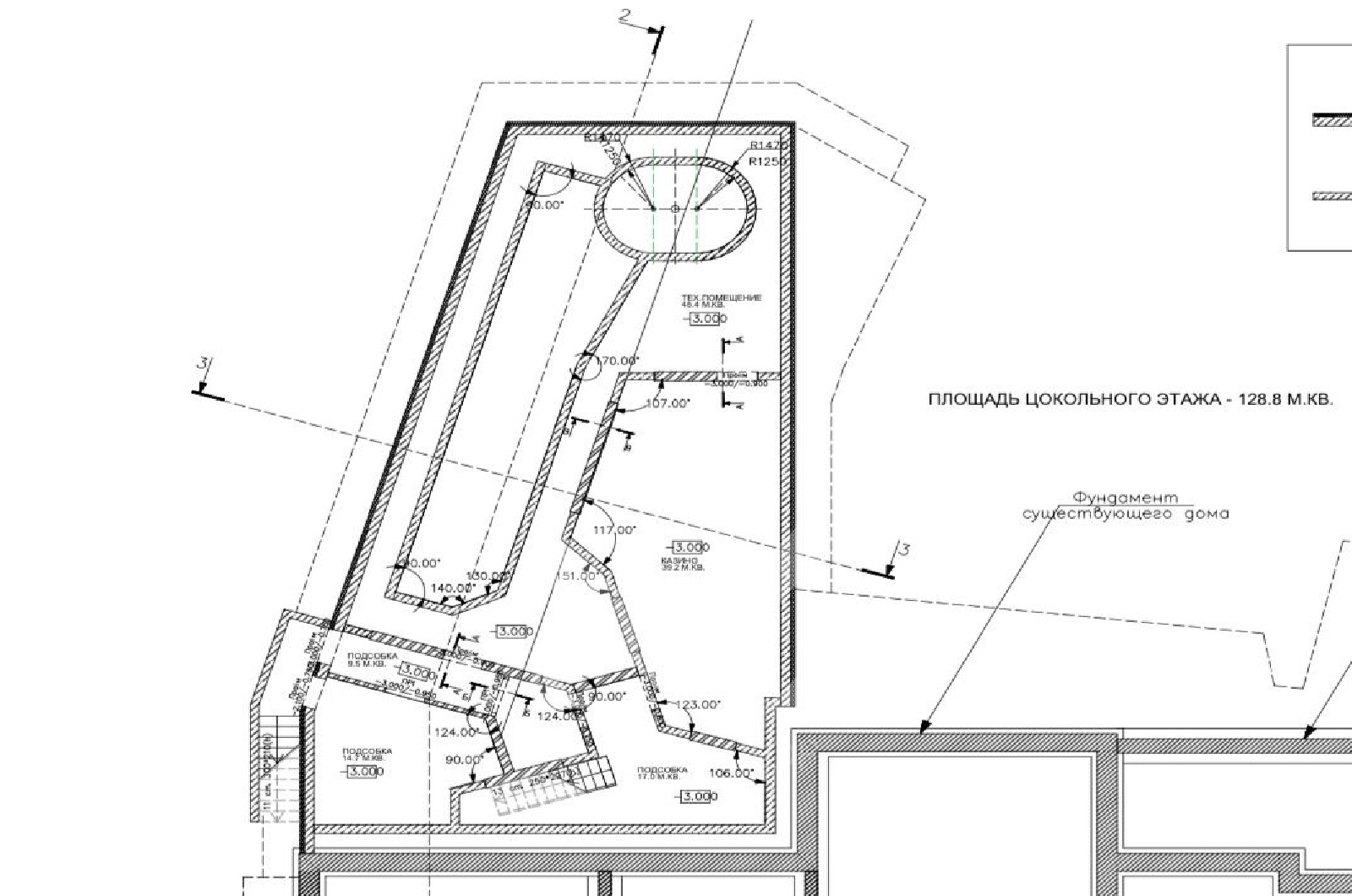
Планировка:

1 этаж - холл, гардеробная, гостиная, с/у, кухня, столовая, зона барбекю, терраса, спальня с с/у, холл, кинотеатр, СПА-зона: бассейн, терраса, раздевалка, хаммам,
сауна, с/у, постирочная, с/у, котельная, кладовая, гараж
на 4 м/м,

2 этаж - холл, 3 спальни с с/у и гардеробными,
спортзал, хозяйский блок: холл, гардеробная, с/у,
ванная, спальня,

Цоколь - техническая зона, площадь свободного
назначения.

$
£
6.384.207 $
6.000 $ / м2
490.000.000
460.526 / м2
4.745.211 £
4.460 £ / м2
5.427.360 €
5.101 € / м2
Поселок
Миллениум парк
Тип
Коттедж
Площадь общая:
1064 м2
Участок
30 соток
Количество спален
5
Состояние
без отделки
Сауна
есть
Бассейн
есть
План помещенияПлан помещенияПлан помещенияПлан помещенияПлан помещенияПлан помещения посмотреть планировку

Похожие предложения

ЛОТ 58544 МТ
ЛОТ 58544 МТ

499.000.000

1000 м²
25 соток
6 спален
с отделкой
ЛОТ 82625 МТ
ЛОТ 82625 МТ

475.000.000

606 м²
21 сотка
4 спальни
с отделкой
ЛОТ 80425 МТП
ЛОТ 80425 МТП

500.000.000

684 м²
33 сотки
5 спален
без отделки
ЛОТ 80565 МТ
ЛОТ 80565 МТ

490.000.000

510 м²
18.4 соток
5 спален
с отделкой

Перезвонить вам?

Наш адрес: 143581, Московская область, Истринский район

Часы работы: 365дн 24ч