ЛОТ 80152 НР

Коттедж в поселке Новорижский

+12 фото

Продажа нового загородного дома площадью 560 кв.м. Новорижское шоссе, 23 км от МКАД. Коттеджный поселок Новорижский. Дом построен в 2 этажа из керамического блока по архитектурному проекту Е.Стрелецкой. Современный стиль дома и панорамное остекление по настоящему позволит насладиться загородной жизнью. Коттедж предлагается на стадии — без отделки. Участок 15 соток в уютном месте поселка. Парковка на 2 м/м. Все коммуникации центральные.

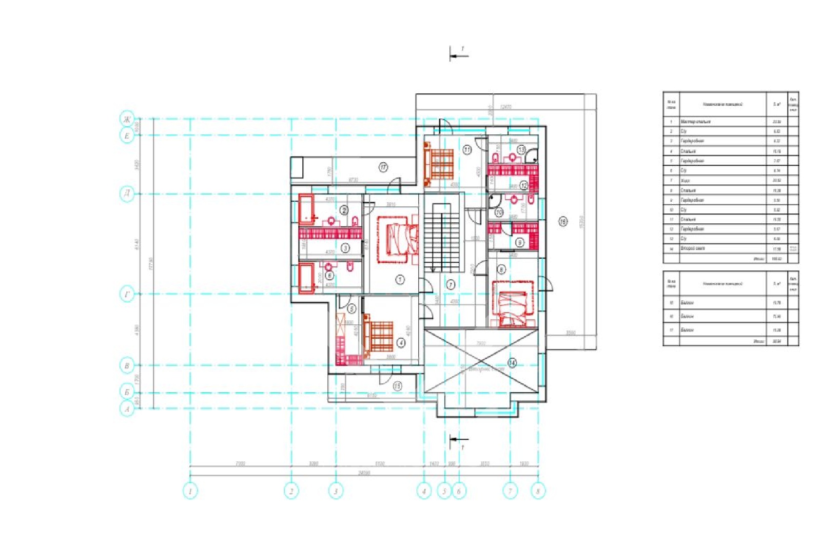
Планировка:
1 этаж — кухня, гостиная-столовая с выходом на террасу, кабинет, с/у, постирочная, гардеробная, 2 кладовые, котельная, гараж на 2 м/м,
2 этаж — 4 спальни с гардеробными и с/у.

$
£
830.724 $
1.483 $ / м2
59.000.000
105.357 / м2
618.466 £
1.104 £ / м2
713.967 €
1.275 € / м2
Лот продан
Поселок
Новорижский
Тип
Коттедж
Площадь общая:
560 м2
Участок
15 соток
Количество спален
4
Состояние
без отделки
План помещенияПлан помещения посмотреть планировку

Похожие предложения

ЛОТ 80575 НР
ЛОТ 80575 НР

55.000.000

250 м²
12.5 соток
0 спален
без отделки
ЛОТ 82654 НР
ЛОТ 82654 НР

62.000.000

210 м²
13 соток
4 спальни
с отделкой
ЛОТ 80054 НР
ЛОТ 80054 НР

55.000.000

220 м²
8 соток
3 спальни
без отделки
ЛОТ 56133 НР
ЛОТ 56133 НР

55.000.000

570 м²
12 соток
4 спальни
без отделки

Перезвонить вам?

Наш адрес: 143581, Московская область, Истринский район

Часы работы: 365дн 24ч